0
Retour

Bordeaux (33000)
Appartement au dernier étage avec tropezienne – Triangle d’Or, Bordeaux

Prix
du bien
385 000 €
réf : 022187

01
Général

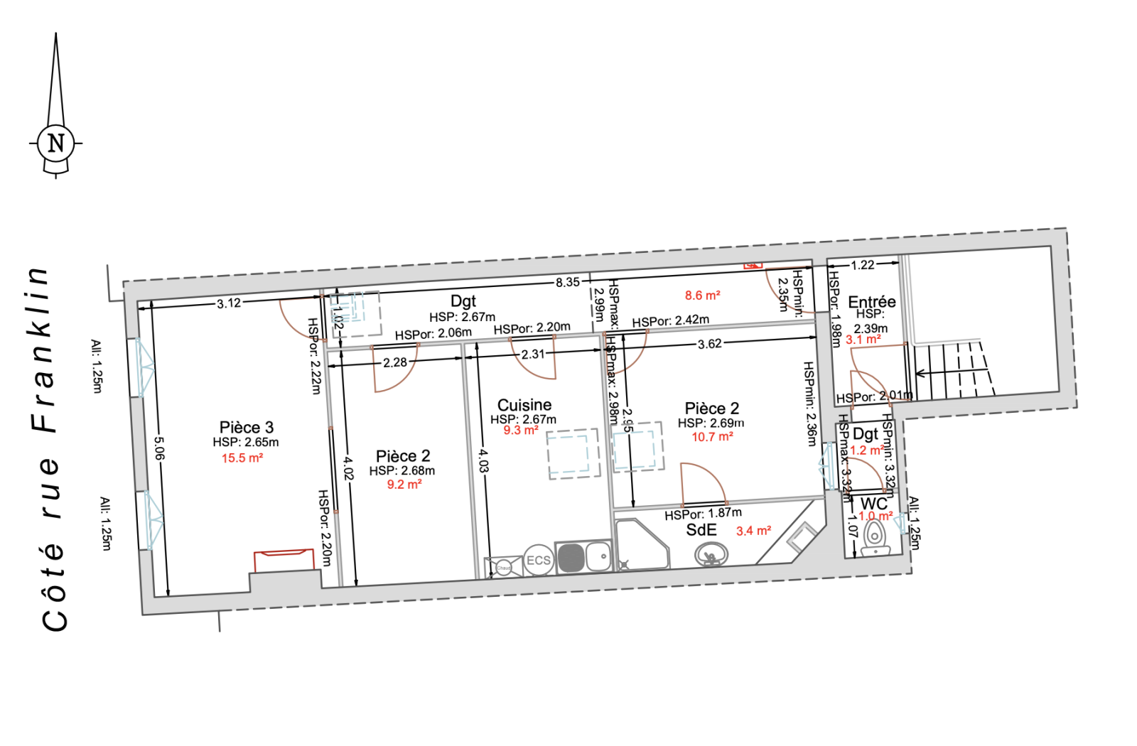
Découvrez ce ravissant appartement eu dernier étage, au cœur du prestigieux Triangle d’Or.

Entre le Cours de l’Intendance et la place des Grands Hommes, cet appartement de 63 m² conjugue charme, emplacement et potentiel.

Emplacement privilégié : dans un immeuble en pierre de seulement 4 lots, au pied de toutes les commodités, des commerces et des transports.

Caractéristiques :

  • 3 pièces baignées de lumière

  • Dernier étage offrant calme et intimité (sans ascensseur)

  • Belle distribution des espaces, idéale pour un pied-à-terre ou une résidence principale

  • Opportunité : possibilité de créer une terrasse de 10 m² (permis accepté et purgé) pour profiter pleinement des toits bordelais.

Un bien rare, alliant le cachet de la pierre et le confort moderne, au sein d’une copropriété intimiste.

Contactez-nous dès aujourd’hui pour découvrir ce bien unique et vous projeter dans l’un des quartiers les plus prisés de Bordeaux.
Gaëlle ROY 06 61 93 23 69

(Photos 1 décorée par l'IA)

02
Plus d'infos

  • Code postal
    33000
  • Surface habitable (m²)
    63 m²
  • Surface loi Carrez (m²)
    63 m²
  • Nombre de chambre(s)
    1
  • Nombre de pièces
    3
  • Etage
    4
  • Ascenseur
    NON
  • Vue
    sur les toits de bordeaux

03
Financier

  • Prix de vente honoraires TTC inclus
    385 000 €

04
Plus de détails

  • Nb de salle d'eau
    1
  • Balcon
    NON
  • Murs mitoyens
    2
  • Cave
    NON
  • Exposition
    Est-Ouest
  • Année de construction
    1900
  • Quartier
    TRIANGLE D'OR

05
Copropriété

  • Copropriété
    OUI
  • Lot n°
    4
  • nombre de lots
    4
  • plan de sauvegarde
    NON

06
Bilan énergétique

DPE GES
Nos outils
Intéressé(e)
par ce bien